T4号棟 4階
物件概要
物件番号
765-00004-30物件名
T4号棟所在地
- 東京都品川区東品川2-2-43
- アクセスマップ
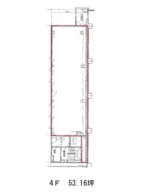
面積
53.16坪賃料(共益費含)
月額935,616円(17,600円/坪)
入居日
2026年5月保証金
4,784,400円礼金
1ケ月更新料
なし償却費
なし竣工
1987年2月構造
SRC規模
地上6階トイレ
男女別空調
エレベーター
有セキュリティ
有駐車場
無耐震
新耐震基準基準階天井高
2360mm空室延床面積
53.16坪情報更新日
2025/12/11T4号棟のテナント募集中区画
| 階数 | 面積 | 賃料(共益費含む) | 保証金 | 入居可能日 | 検討リスト | 詳細 |
|---|---|---|---|---|---|---|
| 4 | 53.16坪 | 935,616円/月(17,600円/坪) | 478万円 | 2026年5月 |
…新着物件
T4号棟のアクセス
T4号棟の物件情報
T4号棟(品川区東品川)は天王洲アイル駅(中央口)から徒歩3分の賃貸オフィスです。

