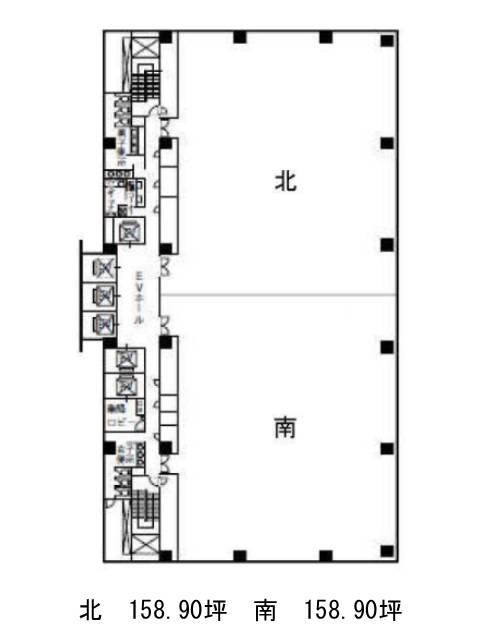
グラスキューブ品川 4階 北
物件概要
グラスキューブ品川のテナント募集中区画
| 階数 | 面積 | 賃料(共益費含む) | 保証金 | 入居可能日 | 検討リスト | 詳細 |
|---|---|---|---|---|---|---|
| 4 | 158.91坪 | 応相談(応相談) | 応相談 | 2026年2月上旬 | ||
| 10 | 158.90坪 | 応相談(応相談) | 応相談 | 即 |
…新着物件
アクセス
グラスキューブ品川の物件情報
グラスキューブ品川(品川区東品川)は品川シーサイド駅(B番出口)から徒歩1分の賃貸オフィスです。2010年竣工、地上13階地下1階建てS造のビルです。ミラーガラスが並びスタイリッシュな外観をしています。基準階面積は317.81坪。長方形のフロアは無柱空間で、オフィス家具等の配置がしやすいでしょう。EV・駐車場・個別空調・OAフロア・給湯スペース・貸室外の男女別トイレ等の設備仕様があります。天井高2800㎜の室内は広々と感じられるでしょう。共用部はモノトーンで、清潔感があります。エントランスはガラス貼りで明るく、ゆったりとお来客をお迎えできるでしょう。グラスキューブ品川は品川シーサイド駅(B番出口)の他に青物横丁駅(出口1)徒歩11分、鮫洲駅(出口)徒歩13分で利用も可能です。

