5階は現在募集がありません
1フロア募集区画あり

イーストスクエア大森 5階

前の写真 次の写真

物件概要

物件番号

766-00106-60

物件名

イーストスクエア大森

所在地

面積

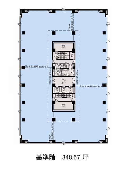
348.57坪

賃料(共益費含)


入居日

募集終了

保証金

礼金

更新料

償却費

竣工

1993年9月

構造

SRC

規模

地上7階/地下1階

トイレ

男女別

空調

個別空調

エレベーター

セキュリティ

駐車場

耐震

新耐震基準

基準階天井高

2550(1F2750)mm

空室延床面積

348.57坪

最寄駅

情報更新日

2026/03/05

イーストスクエア大森のテナント募集中区画

階数 面積 賃料(共益費含む) 保証金 入居可能日 検討リスト 詳細
3 348.57坪 応相談(応相談) 応相談 2026年5月上旬
…新着物件

イーストスクエア大森のアクセス

イーストスクエア大森の物件情報

イーストスクエア大森(品川区南大井)は大森駅(北口2)から徒歩5分の賃貸オフィスです。
イーストスクエア大森は大森駅(北口2)の他に大森海岸駅(出口)徒歩9分で利用も可能です。

近隣のエリア・駅から探す