2階 2Aは現在募集がありません
いちご大森ビル 2階 2A
物件概要
いちご大森ビルのテナント募集中区画
現在、空室がございません。
アクセス
いちご大森ビルの物件情報
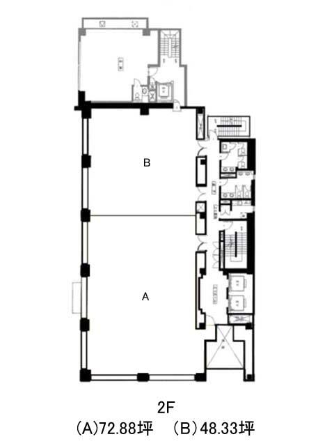
いちご大森ビル(品川区南大井)は大森駅(北口2)から徒歩4分の賃貸オフィスです。地上8階地下1階建てSRC造、1992年竣工のビルです。二面にミラーガラスが並び、スタイリッシュな外観をしています。基準階面積は144.93坪。無柱空間の長方形で、配置のしやすい形をしています。二面採光で明るい室内になるでしょう。設備仕様は、EV・駐車場・機械警備・天井埋め込み型の個別空調・OAフロア・貸室外の男女別トイレ・OAフロアと充実しています。オフィスへの出入口が複数あり動線を確保しやすいでしょう。いちご大森ビルは大森駅(北口2)の他に大森海岸駅(出口)徒歩8分で利用も可能です。

