日立大森第2ビルのテナント募集中区画
| 階数 | 面積 | 賃料(共益費含む) | 保証金 | 入居可能日 | 検討リスト | 詳細 |
|---|---|---|---|---|---|---|
| 6 | 112.00坪 | 応相談(応相談) | 応相談 | 2026年1月上旬 | ||
| 6 | 59.99坪 | 応相談(応相談) | 応相談 | 2026年1月上旬 | ||
| 7 | 251.99坪 | 応相談(応相談) | 応相談 | 即 |
…新着物件
アクセス
日立大森第2ビルの物件情報
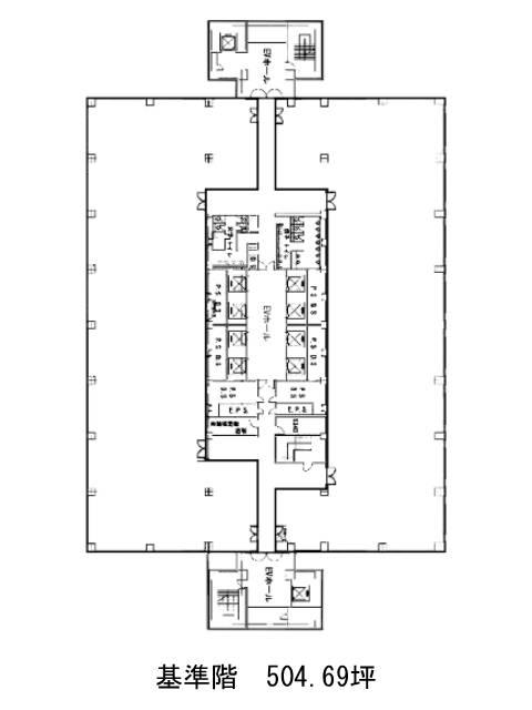
日立大森第2ビル(品川区南大井)は大森駅(東口)から徒歩5分の賃貸オフィスです。1982年竣工、地上16階地下1階建てSRC造のビルです。建物のコア部分に共用部があり、1フロアで2区画に分かれております。貸室は無柱空間でオフィス家具等の配置がしやすいでしょう。EV・空調・OAフロア・男女別トイレといった設備がそろいます。耐震基準について、建築基準法の認定がされています。オフィスの面積は200坪を超える大規模なものがそろっています。周辺は飲食店が充実しており大型スーパーもある為、ランチにご利用頂けるでしょう。日立大森第2ビルは大森駅(東口)の他に大森海岸駅(出口)徒歩7分で利用も可能です。

