9階は現在募集がありません
1フロア募集区画あり

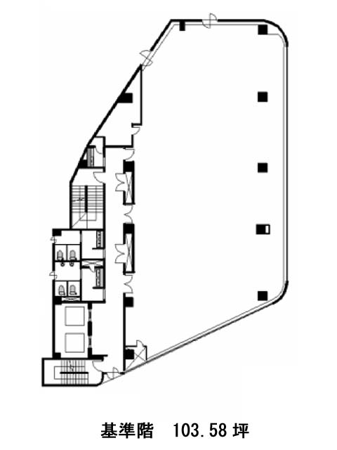
南品川Jビル 9階

前の写真 次の写真

物件概要

物件番号

767-00007-100

物件名

南品川Jビル

所在地

面積

103.58坪

賃料(共益費含)


入居日

募集終了

保証金

礼金

更新料

償却費

竣工

1992年7月

構造

規模

地上10階/地下1階

トイレ

男女別

空調

セントラル

エレベーター

セキュリティ

駐車場

耐震

新耐震基準

基準階天井高

空室延床面積

23.35坪

最寄駅

情報更新日

2026/04/30

南品川Jビルのテナント募集中区画

階数 面積 賃料(共益費含む) 保証金 入居可能日 検討リスト 詳細
8 23.35坪 410,806円/月(17,593円/坪) 448万円 2026年9月
…新着物件

南品川Jビルのアクセス

南品川Jビルの物件情報

南品川Jビル(品川区南品川)は青物横丁駅(出口3)から徒歩5分の賃貸オフィスです。
南品川Jビルは青物横丁駅(出口3)の他に新馬場駅(南口)徒歩5分、鮫洲駅(出口)徒歩11分で利用も可能です。

近隣のエリア・駅から探す