5階は現在募集がありません
1フロア募集区画あり

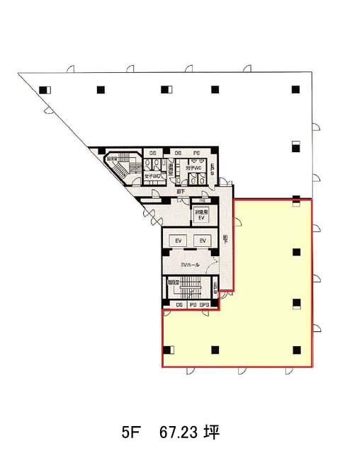
Daiwa品川Northビル 5階

前の写真 次の写真

物件概要

物件番号

772-00001-120

物件名

Daiwa品川Northビル

所在地

面積

67.23坪

賃料(共益費含)


入居日

募集終了

保証金

礼金

更新料

償却費

竣工

1991年7月

構造

SRC

規模

地上11階/地下1階

トイレ

男女別

空調

個別空調

エレベーター

セキュリティ

駐車場

耐震

新耐震基準

基準階天井高

2520mm

空室延床面積

93.98坪

最寄駅

情報更新日

2026/01/14

Daiwa品川Northビルのテナント募集中区画

階数 面積 賃料(共益費含む) 保証金 入居可能日 検討リスト 詳細
7 93.98坪 応相談(応相談) 応相談
…新着物件

アクセス

Daiwa品川Northビルの物件情報

Daiwa品川Northビル(品川区北品川)は北品川駅(出口)から徒歩7分の賃貸オフィスです。
1991年竣工、地上11階・地下1階建ての鉄骨鉄筋コンクリート造、新耐震基準を満たした物件です。角地に位置しており、視認性抜群、採光良好の明るいオフィスです。周辺には、点天王洲運河が流れており、品川区立東八ツ山公園も近隣にあるので緑を感じることの出来るロケーションです。エントランスは広々と明るい雰囲気で来訪者にも好印象でしょう。エレベーターは3基設置。基準階面積は約160坪あり、OAフロア、個別空調、男女別トイレ完備。セキュリティは機械警備です。また駐車場も併設のため、車も使いやすい環境です。
Daiwa品川Northビルは北品川駅(出口)の他に品川駅(港南口)徒歩9分、新馬場駅(北口)徒歩12分で利用も可能です。

近隣のエリア・駅から探す