Daiwa品川Northビルのテナント募集中区画
| 階数 | 面積 | 賃料(共益費含む) | 保証金 | 入居可能日 | 検討リスト | 詳細 |
|---|---|---|---|---|---|---|
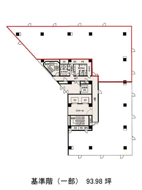
| 7 | 93.98坪 | 応相談(応相談) | 応相談 | 即 |
…新着物件
アクセス
Daiwa品川Northビルの物件情報
Daiwa品川Northビル(品川区北品川)は北品川駅(出口)から徒歩7分の賃貸オフィスです。1991年竣工、地上11階・地下1階建ての鉄骨鉄筋コンクリート造、新耐震基準を満たした物件です。角地に位置しており、視認性抜群、採光良好の明るいオフィスです。周辺には、点天王洲運河が流れており、品川区立東八ツ山公園も近隣にあるので緑を感じることの出来るロケーションです。エントランスは広々と明るい雰囲気で来訪者にも好印象でしょう。エレベーターは3基設置。基準階面積は約160坪あり、OAフロア、個別空調、男女別トイレ完備。セキュリティは機械警備です。また駐車場も併設のため、車も使いやすい環境です。Daiwa品川Northビルは北品川駅(出口)の他に品川駅(港南口)徒歩9分、新馬場駅(北口)徒歩12分で利用も可能です。

