3階は現在募集がありません
5フロア募集区画あり

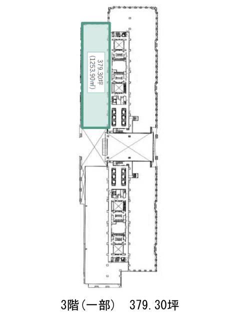
ガーデンシティ品川御殿山 3階

前の写真 次の写真

物件概要

物件番号

772-00115-217

物件名

ガーデンシティ品川御殿山

所在地

面積

379.30坪

賃料(共益費含)


入居日

募集終了

保証金

礼金

更新料

償却費

竣工

2011年2月

構造

RC

規模

地上9階/地下1階

トイレ

男女別

空調

個別空調

エレベーター

セキュリティ

駐車場

耐震

新耐震基準

基準階天井高

2900mm

空室延床面積

3024.65坪

最寄駅

情報更新日

2025/11/05

ガーデンシティ品川御殿山のテナント募集中区画

階数 面積 賃料(共益費含む) 保証金 入居可能日 検討リスト 詳細
3 267.60坪 応相談(応相談) 応相談 相談
6 291.91坪 応相談(応相談) 応相談
7 1011.39坪 応相談(応相談) 応相談
7 546.61坪 応相談(応相談) 応相談
8 907.14坪 応相談(応相談) 応相談
…新着物件

アクセス

ガーデンシティ品川御殿山の物件情報

ガーデンシティ品川御殿山(品川区北品川)は北品川駅(出口)から徒歩7分の賃貸オフィスです。
2011年竣工、地上9階・地下1階建ての鉄筋コンクリート造、一部鉄骨鉄筋コンクリート造です。ソニー通りに面する角地に位置し、ホテルのような美しい外観が圧倒的な存在感があります。基準階面積は約2,000坪と超大型物件。長方形の無柱空間でレイアウト効率も抜群です。天井高は2,900mmあり、LED照明なので開放的で明るい空間です。貸室内の床仕様はOAフロアとなっており、配線もすっきりと整理可能、トイレは男女別、空調は個別空調です。貸会議室も併設されており、会議やミーティングに使用可能。セキュリティは機械警備、フラッパーゲート対応で安心かつハイスペックなオフィス環境です。
ガーデンシティ品川御殿山は北品川駅(出口)の他に品川駅(高輪口)徒歩12分、新馬場駅(北口)徒歩13分で利用も可能です。

近隣のエリア・駅から探す