2階 2-①は現在募集がありません
ガーデングレイス品川御殿山 2階 2-①
物件概要
ガーデングレイス品川御殿山のテナント募集中区画
現在、空室がございません。
ガーデングレイス品川御殿山のアクセス
ガーデングレイス品川御殿山の物件情報
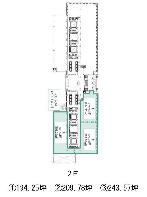
ガーデングレイス品川御殿山(品川区北品川)は北品川駅(出口)から徒歩7分の賃貸オフィスです。2011年竣工、地上9階・地下1階建ての鉄筋コンクリート造、一部鉄骨鉄筋コンクリート造です。ソニー通りに面する角地に位置し、ホテルのような美しい外観が圧倒的な存在感があります。基準階面積は約2,000坪と超大型物件。長方形の無柱空間でレイアウト効率も抜群です。天井高は2,900mmあり、LED照明なので開放的で明るい空間です。貸室内の床仕様はOAフロアとなっており、配線もすっきりと整理可能、トイレは男女別、空調は個別空調です。貸会議室も併設されており、会議やミーティングに使用可能。セキュリティは機械警備、フラッパーゲート対応で安心かつハイスペックなオフィス環境です。ガーデングレイス品川御殿山は北品川駅(出口)の他に品川駅(高輪口)徒歩12分、新馬場駅(北口)徒歩13分で利用も可能です。

