5階は現在募集がありません
2フロア募集区画あり

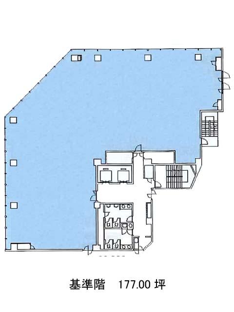
日本生命音羽NSビル 5階

前の写真 次の写真

物件概要

物件番号

773-00008-80

物件名

日本生命音羽NSビル

所在地

面積

177.00坪

賃料(共益費含)


入居日

募集終了

保証金

礼金

更新料

償却費

竣工

1989年

構造

規模

トイレ

男女別

空調

セントラル

エレベーター

セキュリティ

駐車場

耐震

新耐震基準

基準階天井高

空室延床面積

162.45坪

最寄駅

情報更新日

2026/04/27

日本生命音羽NSビルのテナント募集中区画

階数 面積 賃料(共益費含む) 保証金 入居可能日 検討リスト 詳細
3 80.42坪 応相談(応相談) 応相談 2026年5月
3 82.03坪 応相談(応相談) 応相談 2026年10月中旬
…新着物件

日本生命音羽NSビルのアクセス

日本生命音羽NSビルの物件情報

日本生命音羽NSビル(文京区音羽)は護国寺駅(1番出口)から徒歩2分の賃貸オフィスです。
1989年竣工の鉄骨鉄筋コンクリート造、地上9階、地下1階建てのビルです。音羽通り沿い、護国寺前交差点の角に位置し、ビル1階にコンビニがあり視認性がとても高いです。新耐震基準を満たしているため、安心です。エレベーターは2基設置、OAフロア、個別空調、駐車場があるため社用車を利用される場合は便利でしょう。周辺には飲食店が複数あり、スーパーや交番は最寄駅前に、郵便局も徒歩圏内にあるため利便性の高いエリアです。
日本生命音羽NSビルは護国寺駅(1番出口)の他に新大塚駅(2番出口)徒歩11分、東池袋駅(5番出口)徒歩13分で利用も可能です。

近隣のエリア・駅から探す