3階は現在募集がありません
2フロア募集区画あり

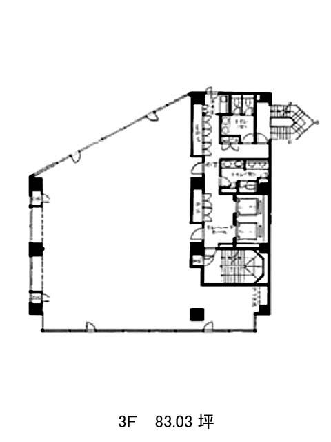
東宝江戸川橋ビル 3階

前の写真 次の写真

物件概要

物件番号

774-00029-152

物件名

東宝江戸川橋ビル

所在地

面積

83.03坪

賃料(共益費含)


入居日

募集終了

保証金

礼金

更新料

償却費

竣工

1993年3月

構造

SRC

規模

地上9階/地下1階

トイレ

男女別

空調

個別空調

エレベーター

セキュリティ

駐車場

耐震

新耐震基準

基準階天井高

2540mm

空室延床面積

117.53坪

最寄駅

情報更新日

2025/10/28

東宝江戸川橋ビルのテナント募集中区画

階数 面積 賃料(共益費含む) 保証金 入居可能日 検討リスト 詳細
4 83.03坪 1,281,500円/月(15,435円/坪) 582万円 2025年12月上旬
5 34.50坪 605,000円/月(17,537円/坪) 495万円 2026年1月上旬
…新着物件

アクセス

東宝江戸川橋ビルの物件情報

東宝江戸川橋ビル(文京区関口)は江戸川橋駅(1b番出口)から徒歩4分の賃貸オフィスです。
1993年竣工の鉄骨鉄筋コンクリート造、新耐震基準を満たしている地上9階、地下1階建てのビルです。新目白通りに面しており、外観はグレーを基調としたタイル張り、エントランスやエレベーターホールは石造りで重厚感のある落ち着いた雰囲気です。トイレは男女別、エレベーター2基設置、個別空調です。駐車場が機械式と平面式が併設されているため、社用車を利用される場合は便利です。周辺にはコンビニや飲食店があるため、ランチには困らないでしょう。
東宝江戸川橋ビルは江戸川橋駅(1b番出口)の他に早稲田駅(1番出口)徒歩13分、神楽坂駅(2番出口)徒歩13分で利用も可能です。

近隣のエリア・駅から探す