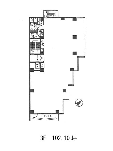
山水ビルのテナント募集中区画
| 階数 | 面積 | 賃料(共益費含む) | 保証金 | 入居可能日 | 検討リスト | 詳細 |
|---|---|---|---|---|---|---|
| 2 | 109.05坪 | 1,175,559円/月(10,780円/坪) | 523万円 | 即 |
…新着物件
アクセス
山水ビルの物件情報
山水ビル(文京区関口)は早稲田駅(停留所)から徒歩8分の賃貸オフィスです。山水ビルは早稲田駅(停留所)の他に江戸川橋駅(1b番出口)徒歩10分、面影橋駅(停留所)徒歩12分で利用も可能です。

