日教販ビルのテナント募集中区画
| 階数 | 面積 | 賃料(共益費含む) | 保証金 | 入居可能日 | 検討リスト | 詳細 |
|---|---|---|---|---|---|---|
| 2 | 115.72坪 | 2,800,308円/月(24,200円/坪) | 2,444万円 | 2026年3月 |
…新着物件
日教販ビルのアクセス
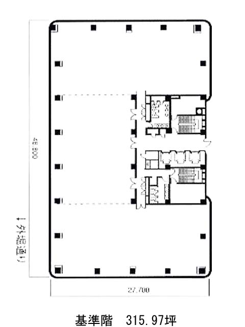
日教販ビルの物件情報
日教販ビル(文京区後楽)は飯田橋駅(C2番出口)から徒歩3分の賃貸オフィスです。日教販ビルは飯田橋駅(C2番出口)の他に水道橋駅(西口)徒歩7分、後楽園駅(1番出口)徒歩10分で利用も可能です。

