4階は現在募集がありません
1フロア募集区画あり

福泉ビル(フクイズミ) 4階

前の写真 次の写真

物件概要

物件番号

778-00004-30

物件名

福泉ビル(フクイズミ)

所在地

面積

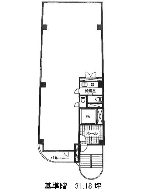
31.18坪

賃料(共益費含)


入居日

募集終了

保証金

礼金

更新料

償却費

竣工

1991年10月

構造

S造

規模

地上10階

トイレ

男女別

空調

個別空調

エレベーター

セキュリティ

駐車場

耐震

新耐震基準

基準階天井高

2450mm

空室延床面積

31.18坪

最寄駅

情報更新日

2026/02/24

福泉ビル(フクイズミ)のテナント募集中区画

階数 面積 賃料(共益費含む) 保証金 入居可能日 検討リスト 詳細
8 31.18坪 335,500円/月(10,761円/坪) 87万円 相談
…新着物件

福泉ビル(フクイズミ)のアクセス

福泉ビル(フクイズミ)の物件情報

福泉ビル(フクイズミ)(文京区春日)は後楽園駅(6番出口)から徒歩11分の賃貸オフィスです。
福泉ビル(フクイズミ)は後楽園駅(6番出口)の他に春日駅(6番出口)徒歩11分、飯田橋駅(C3番出口)徒歩13分で利用も可能です。

近隣のエリア・駅から探す