福泉ビル(フクイズミ)のテナント募集中区画
| 階数 | 面積 | 賃料(共益費含む) | 保証金 | 入居可能日 | 検討リスト | 詳細 |
|---|---|---|---|---|---|---|
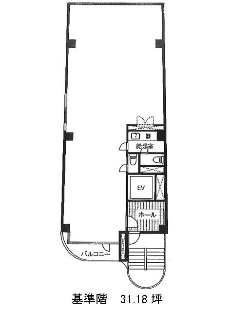
| 8 | 31.18坪 | 335,500円/月(10,761円/坪) | 87万円 | 相談 |
…新着物件
アクセス
福泉ビル(フクイズミ)の物件情報
福泉ビル(フクイズミ)(文京区春日)は後楽園駅(6番出口)から徒歩11分の賃貸オフィスです。福泉ビル(フクイズミ)は後楽園駅(6番出口)の他に春日駅(6番出口)徒歩11分、飯田橋駅(C3番出口)徒歩13分で利用も可能です。

