ベルスクエア小石川のテナント募集中区画
| 階数 | 面積 | 賃料(共益費含む) | 保証金 | 入居可能日 | 検討リスト | 詳細 |
|---|---|---|---|---|---|---|
| 3 | 33.69坪 | 495,000円/月(14,693円/坪) | 234万円 | 相談 |
…新着物件
ベルスクエア小石川のアクセス
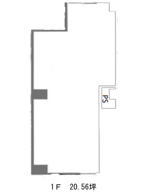
ベルスクエア小石川の物件情報
ベルスクエア小石川(文京区小石川)は茗荷谷駅(3番出口)から徒歩8分の賃貸オフィスです。ベルスクエア小石川は茗荷谷駅(3番出口)の他に江戸川橋駅(4番出口)徒歩15分で利用も可能です。

