1階は現在募集がありません
2フロア募集区画あり

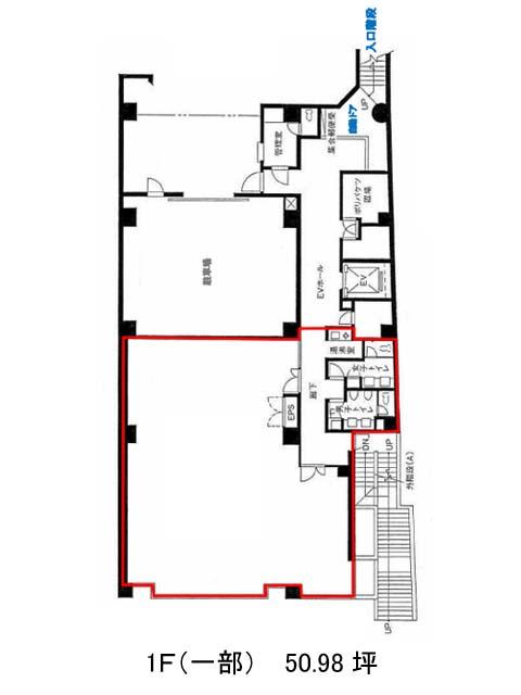
プライム小石川ビル 1階

前の写真 次の写真

物件概要

物件番号

780-00011-71

物件名

プライム小石川ビル

所在地

面積

50.98坪

賃料(共益費含)


入居日

募集終了

保証金

礼金

更新料

償却費

竣工

1991年8月

構造

SRC

規模

地上9階/地下2階

トイレ

男女別

空調

個別空調

エレベーター

セキュリティ

駐車場

耐震

新耐震基準

基準階天井高

2500mm

空室延床面積

142.12坪

最寄駅

情報更新日

2025/12/02

プライム小石川ビルのテナント募集中区画

階数 面積 賃料(共益費含む) 保証金 入居可能日 検討リスト 詳細
5 71.06坪 1,563,320円/月(22,000円/坪) 1,136万円 2026年6月上旬
6 71.06坪 1,563,320円/月(22,000円/坪) 1,136万円 2026年4月上旬
…新着物件

アクセス

プライム小石川ビルの物件情報

プライム小石川ビル(文京区小日向)は茗荷谷駅(3番出口)から徒歩6分の賃貸オフィスです。
1991年竣工、新耐震基準を満たし春日通りに面する、鉄骨鉄筋コンクリート造の地上9階建てのビルです。外観はグレーのタイル張りで窓面も多く、十分な採光が望めます。エントランスや共用部は清潔感のある雰囲気で来客の印象も良いでしょう。車でのアクセスも良好で、駐車場もあるため、社用車を利用される場合には便利です。レイアウトを組みやすい間取りで、エレベーターは1基、個別空調、OAフロアと設備面も充実しております。

近隣のエリア・駅から探す