4階は現在募集がありません
1フロア募集区画あり
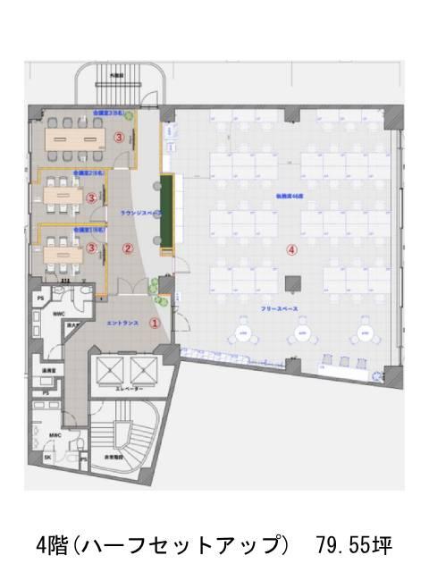
The Fellow Bunkyo 4階
物件概要
物件番号
785-00010-30物件名
The Fellow Bunkyo所在地
- 東京都文京区大塚5-3-13
- アクセスマップ
面積
79.55坪賃料(共益費含)
−入居日
募集終了保証金
−礼金
−更新料
−償却費
−竣工
1987年7月構造
SRC規模
地上8階/地下2階トイレ
男女別空調
個別空調エレベーター
有セキュリティ
有駐車場
無耐震
新耐震基準基準階天井高
2500mm空室延床面積
84.95坪情報更新日
2026/03/13The Fellow Bunkyoのテナント募集中区画
| 階数 | 面積 | 賃料(共益費含む) | 保証金 | 入居可能日 | 検討リスト | 詳細 |
|---|---|---|---|---|---|---|
| 7 | 84.95坪 | 1,868,900円/月(22,000円/坪) | 応相談 | 2026年7月上旬 |
…新着物件
The Fellow Bunkyoのアクセス
The Fellow Bunkyoの物件情報
The Fellow Bunkyo(文京区大塚)は新大塚駅(2番出口)から徒歩4分の賃貸オフィスです。地上8階地下2階建てSRC造、1987年竣工のビルです。濃いグレーの外壁で、堅牢な印象の外観をしています。室内に支柱のでっぱりが少なく、デスク等の配置がしやすいでしょう。設備仕様は、EV2基・機械警備・非常階段2箇所・給湯室・個別空調・OAフロア・貸室外の男女別トイレがそろいます。1階にミニスーパーが入居し、ランチ等の買い物に便利でしょう。オフィスは24時間使用可能です。The Fellow Bunkyoは新大塚駅(2番出口)の他に護国寺駅(1番出口)徒歩9分、向原駅(停留所)徒歩12分で利用も可能です。

