杏林ビルのテナント募集中区画
| 階数 | 面積 | 賃料(共益費含む) | 保証金 | 入居可能日 | 検討リスト | 詳細 |
|---|---|---|---|---|---|---|
| 3 | 59.23坪 | 912,142円/月(15,400円/坪) | 390万円 | 即 | ||
| 4 | 58.17坪 | 895,818円/月(15,400円/坪) | 383万円 | 即 |
…新着物件
杏林ビルのアクセス
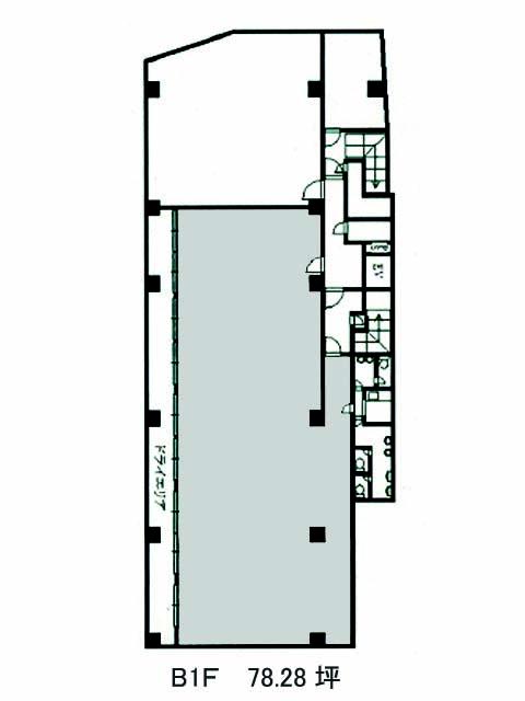
杏林ビルの物件情報
杏林ビル(文京区湯島)は湯島駅(1番出口)から徒歩6分の賃貸オフィスです。春日通り沿い、角地に位置しており、白を基調としたタイル張りで丸みのある外観が特徴的で、視認性も高いです。地上10階、地下1階建ての鉄骨鉄筋コンクリート造、1987年竣工です。新耐震基準を満たしているため、安心です。エレベーターは1基設置、トイレは男女別、個別空調、駐車場もあるため社用車を利用される場合はとても便利でしょう。貸室内は、整形で柱も壁側にあるため比較的自由なレイアウトを組むことが可能です。杏林ビルは湯島駅(1番出口)の他に本郷三丁目駅(4番出口)徒歩6分、上野御徒町駅(A4番出口)徒歩10分で利用も可能です。

