湯島ビルヂング 2階
物件概要
物件番号
786-00085-40物件名
湯島ビルヂング所在地
- 東京都文京区湯島3-14-9
- アクセスマップ
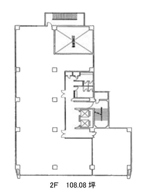
面積
108.08坪賃料(共益費含)
月額2,258,872円(20,900円/坪)
入居日
即保証金
10,375,680円礼金
なし更新料
新1ケ月償却費
1ケ月竣工
1971年12月構造
SRC規模
地上10階/地下1階トイレ
男女別空調
個別空調エレベーター
有セキュリティ
駐車場
有耐震
耐震補強済み基準階天井高
空室延床面積
108.08坪情報更新日
2025/11/19湯島ビルヂングのテナント募集中区画
| 階数 | 面積 | 賃料(共益費含む) | 保証金 | 入居可能日 | 検討リスト | 詳細 |
|---|---|---|---|---|---|---|
| 2 | 108.08坪 | 2,258,872円/月(20,900円/坪) | 1,037万円 | 即 |
…新着物件
アクセス
湯島ビルヂングの物件情報
湯島ビルヂング(文京区湯島)は湯島駅(6番出口)から徒歩2分の賃貸オフィスです。1971年竣工、練成通り三組坂下交差点のすぐ近く、地上10階、地下1階建ての鉄骨鉄筋コンクリート造のビルです。基準階は約135坪、OAフロア、個別空調、トイレは男女別、エレベーターは2基設置です。駐車場もあるため、社用車を利用される場合は便利でしょう。周辺はオフィスビルやマンションが並び、落ち着いている雰囲気ですが、徒歩圏内に飲食店や建物の1階にコンビニがあるため、お昼には困らないでしょう。湯島ビルヂングは湯島駅(6番出口)の他に末広町駅(4番出口)徒歩5分、上野広小路駅(A1番出口)徒歩7分で利用も可能です。

