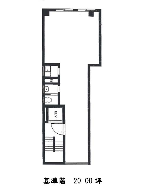
明和本郷ビルのテナント募集中区画
| 階数 | 面積 | 賃料(共益費含む) | 保証金 | 入居可能日 | 検討リスト | 詳細 |
|---|---|---|---|---|---|---|
| 4 | 20.00坪 | 253,000円/月(12,650円/坪) | 80万円 | 即 |
…新着物件
明和本郷ビルのアクセス
明和本郷ビルの物件情報
明和本郷ビル(文京区本郷)は本郷三丁目駅(4番出口)から徒歩2分の賃貸オフィスです。明和本郷ビルは本郷三丁目駅(4番出口)の他に春日駅(A2番出口)徒歩10分、湯島駅(1番出口)徒歩12分で利用も可能です。

