KAZEN第2ビル 2階
物件概要
物件番号
788-00030-20物件名
KAZEN第2ビル所在地
- 東京都文京区本郷2-26-11
- アクセスマップ
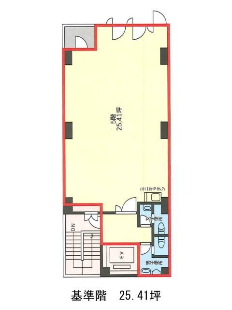
面積
25.41坪賃料(共益費含)
月額343,797円(13,530円/坪)
入居日
即保証金
1,646,568円礼金
なし更新料
なし償却費
2ケ月竣工
1983年9月構造
SRC規模
地上8階/地下1階トイレ
男女別空調
個別空調エレベーター
有セキュリティ
有駐車場
無耐震
新耐震基準基準階天井高
空室延床面積
50.82坪情報更新日
2025/09/22KAZEN第2ビルのテナント募集中区画
| 階数 | 面積 | 賃料(共益費含む) | 保証金 | 入居可能日 | 検討リスト | 詳細 |
|---|---|---|---|---|---|---|
| 2 | 25.41坪 | 343,797円/月(13,530円/坪) | 164万円 | 即 | ||
| 5 | 25.41坪 | 349,971円/月(13,773円/坪) | 168万円 | 即 |
…新着物件
アクセス
KAZEN第2ビルの物件情報
KAZEN第2ビル(文京区本郷)は本郷三丁目駅(2番出口)から徒歩4分の賃貸オフィスです。KAZEN第2ビルは本郷三丁目駅(2番出口)の他に水道橋駅(A6番出口)徒歩9分、御茶ノ水駅(1番出口)徒歩9分で利用も可能です。

