玉屋ビルのテナント募集中区画
| 階数 | 面積 | 賃料(共益費含む) | 保証金 | 入居可能日 | 検討リスト | 詳細 |
|---|---|---|---|---|---|---|
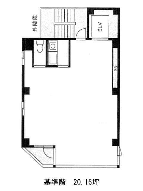
| 3 | 20.16坪 | 354,816円/月(17,600円/坪) | 193万円 | 即 | ||
| 6 | 20.16坪 | 354,816円/月(17,600円/坪) | 193万円 | 即 |
…新着物件
アクセス
玉屋ビルの物件情報
玉屋ビル(文京区本郷)は本郷三丁目駅(4番出口)から徒歩1分の賃貸オフィスです。玉屋ビルは本郷三丁目駅(4番出口)の他に春日駅(A2番出口)徒歩10分、湯島駅(1番出口)徒歩11分で利用も可能です。

