日平本郷ビル 9階
物件概要
物件番号
788-00599-7物件名
日平本郷ビル所在地
- 東京都文京区本郷3-14-11
- アクセスマップ
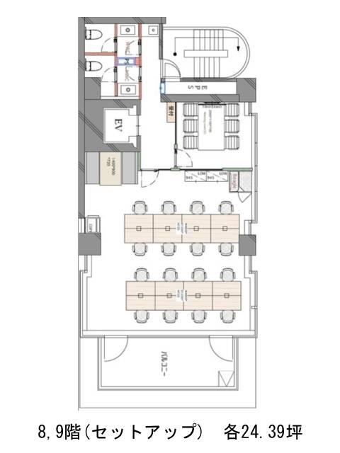
面積
24.39坪賃料(共益費含)
月額778,041円(31,900円/坪)
入居日
2026年9月上旬保証金
応相談礼金
なし更新料
なし償却費
なし竣工
1996年6月構造
SRC規模
地上10階/地下1階トイレ
男女別空調
個別空調エレベーター
有セキュリティ
有駐車場
有耐震
新耐震基準基準階天井高
空室延床面積
197.03坪情報更新日
2026/02/18日平本郷ビルのテナント募集中区画
…新着物件
日平本郷ビルのアクセス
日平本郷ビルの物件情報
日平本郷ビル(文京区本郷)は本郷三丁目駅(5番出口)から徒歩5分の賃貸オフィスです。日平本郷ビルは本郷三丁目駅(5番出口)の他に御茶ノ水駅(1番出口)徒歩9分、湯島駅(5番出口)徒歩11分で利用も可能です。

