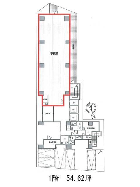
門前仲町トーセイビル 1階
物件概要
物件番号
82-00031-1物件名
門前仲町トーセイビル所在地
- 東京都江東区佐賀1-4-9
- アクセスマップ
面積
54.62坪賃料(共益費含)
:応相談応相談
入居日
即保証金
応相談礼金
なし更新料
なし償却費
なし竣工
2024年4月構造
RC規模
地上9階/地下1階トイレ
男女別空調
個別空調エレベーター
有セキュリティ
駐車場
有耐震
新耐震基準基準階天井高
2600mm空室延床面積
439.26坪情報更新日
2026/03/10門前仲町トーセイビルのテナント募集中区画
| 階数 | 面積 | 賃料(共益費含む) | 保証金 | 入居可能日 | 検討リスト | 詳細 |
|---|---|---|---|---|---|---|
| 1 | 54.62坪 | 応相談(応相談) | 応相談 | 即 | ||
| 2 | 96.16坪 | 応相談(応相談) | 応相談 | 即 | ||
| 3 | 96.16坪 | 応相談(応相談) | 応相談 | 即 | ||
| 4 | 96.16坪 | 応相談(応相談) | 応相談 | 即 | ||
| 5 | 96.16坪 | 応相談(応相談) | 応相談 | 即 |
…新着物件
門前仲町トーセイビルのアクセス
門前仲町トーセイビルの物件情報
門前仲町トーセイビル(江東区佐賀)は門前仲町駅(4番出口)から徒歩8分の賃貸オフィスです。門前仲町トーセイビルは門前仲町駅(4番出口)の他に水天宮前駅(2番出口)徒歩11分、茅場町駅(4B番出口)徒歩13分で利用も可能です。

