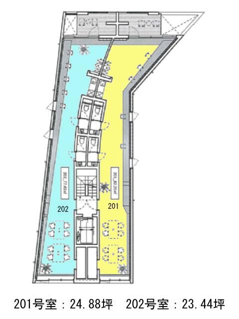
ACN目黒Gardenのテナント募集中区画
| 階数 | 面積 | 賃料(共益費含む) | 保証金 | 入居可能日 | 検討リスト | 詳細 |
|---|---|---|---|---|---|---|
| 4 | 24.33坪 | 669,075円/月(27,500円/坪) | 364万円 | 即 |
…新着物件
アクセス
ACN目黒Gardenの物件情報
ACN目黒Garden(目黒区下目黒)は目黒駅(出口)から徒歩6分の賃貸オフィスです。ACN目黒Gardenは目黒駅(出口)の他に不動前駅(出口)徒歩11分で利用も可能です。

