青葉台石橋ビルのテナント募集中区画
| 階数 | 面積 | 賃料(共益費含む) | 保証金 | 入居可能日 | 検討リスト | 詳細 |
|---|---|---|---|---|---|---|
| 8 | 119.74坪 | 2,370,852円/月(19,800円/坪) | 2,011万円 | 即 |
…新着物件
青葉台石橋ビルのアクセス
青葉台石橋ビルの物件情報
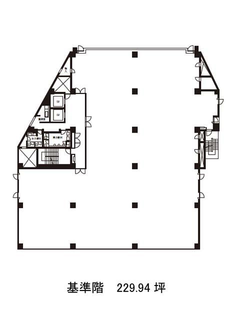
青葉台石橋ビル(目黒区青葉台)は神泉駅(南口)から徒歩7分の賃貸オフィスです。1987年竣工の地上9階建て、新耐震基準を満たす鉄骨鉄筋コンクリート造です。神泉町交差点付近、玉川通りに面しています。外観は白いタイル調で、前面はガラス張りとなっています。貸室の形状はL字型や整形オフィスに近いものなど、フロアによって異なります。当物件にはエレベータが2基、個別空調、OAフロア、室外の男女別トイレ、駐車場等、働きやすさをサポートする設備が整っています。1階にはコンビニがあり、周辺にはいくつかの飲食店が立地していますので、ランチタイムにも過ごしやすいでしょう。青葉台石橋ビルは神泉駅(南口)の他に渋谷駅(西口)徒歩11分、池尻大橋駅(東口)徒歩12分で利用も可能です。

