青葉台石橋ビル 7階
物件概要
物件番号
876-00021-40物件名
青葉台石橋ビル所在地
- 東京都目黒区青葉台3-1-19
- アクセスマップ
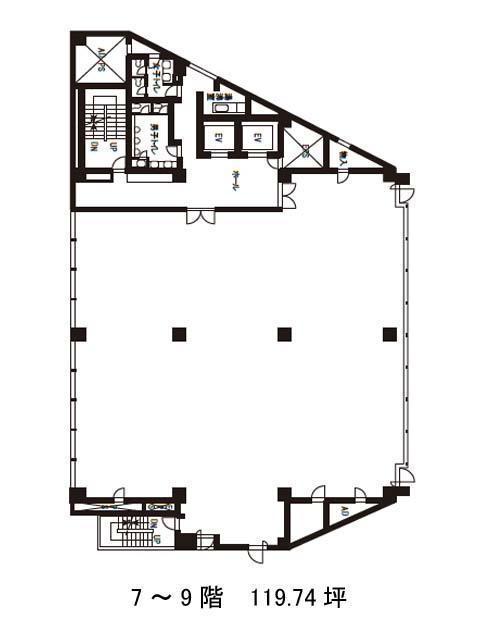
面積
119.74坪賃料(共益費含)
月額2,370,852円(19,800円/坪)
入居日
2026年4月上旬保証金
20,116,320円礼金
なし更新料
なし償却費
なし竣工
1987年3月構造
SRC規模
地上9階トイレ
男女別空調
個別空調エレベーター
有セキュリティ
有駐車場
有耐震
新耐震基準基準階天井高
空室延床面積
119.74坪情報更新日
2025/11/25青葉台石橋ビルのテナント募集中区画
| 階数 | 面積 | 賃料(共益費含む) | 保証金 | 入居可能日 | 検討リスト | 詳細 |
|---|---|---|---|---|---|---|
| 7 | 119.74坪 | 2,370,852円/月(19,800円/坪) | 2,011万円 | 2026年4月上旬 |
…新着物件
アクセス
青葉台石橋ビルの物件情報
青葉台石橋ビル(目黒区青葉台)は神泉駅(南口)から徒歩7分の賃貸オフィスです。1987年竣工の地上9階建て、新耐震基準を満たす鉄骨鉄筋コンクリート造です。神泉町交差点付近、玉川通りに面しています。外観は白いタイル調で、前面はガラス張りとなっています。貸室の形状はL字型や整形オフィスに近いものなど、フロアによって異なります。当物件にはエレベータが2基、個別空調、OAフロア、室外の男女別トイレ、駐車場等、働きやすさをサポートする設備が整っています。1階にはコンビニがあり、周辺にはいくつかの飲食店が立地していますので、ランチタイムにも過ごしやすいでしょう。青葉台石橋ビルは神泉駅(南口)の他に渋谷駅(西口)徒歩11分、池尻大橋駅(東口)徒歩12分で利用も可能です。

