9階は現在募集がありません
1フロア募集区画あり

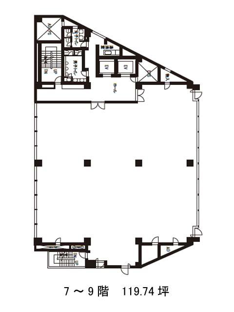
青葉台石橋ビル 9階

前の写真 次の写真

物件概要

物件番号

876-00021-60

物件名

青葉台石橋ビル

所在地

面積

119.74坪

賃料(共益費含)


入居日

募集終了

保証金

礼金

更新料

償却費

竣工

1987年3月

構造

SRC

規模

地上9階

トイレ

男女別

空調

個別空調

エレベーター

セキュリティ

駐車場

耐震

新耐震基準

基準階天井高

空室延床面積

119.74坪

最寄駅

情報更新日

2025/11/25

青葉台石橋ビルのテナント募集中区画

階数 面積 賃料(共益費含む) 保証金 入居可能日 検討リスト 詳細
7 119.74坪 2,370,852円/月(19,800円/坪) 2,011万円 2026年4月上旬
…新着物件

アクセス

青葉台石橋ビルの物件情報

青葉台石橋ビル(目黒区青葉台)は神泉駅(南口)から徒歩7分の賃貸オフィスです。
1987年竣工の地上9階建て、新耐震基準を満たす鉄骨鉄筋コンクリート造です。神泉町交差点付近、玉川通りに面しています。外観は白いタイル調で、前面はガラス張りとなっています。貸室の形状はL字型や整形オフィスに近いものなど、フロアによって異なります。当物件にはエレベータが2基、個別空調、OAフロア、室外の男女別トイレ、駐車場等、働きやすさをサポートする設備が整っています。1階にはコンビニがあり、周辺にはいくつかの飲食店が立地していますので、ランチタイムにも過ごしやすいでしょう。
青葉台石橋ビルは神泉駅(南口)の他に渋谷駅(西口)徒歩11分、池尻大橋駅(東口)徒歩12分で利用も可能です。

近隣のエリア・駅から探す