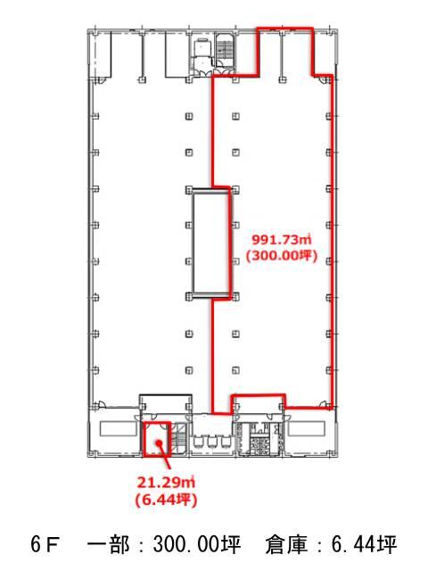
JMFビル東陽町02 6階
物件概要
JMFビル東陽町02のテナント募集中区画
| 階数 | 面積 | 賃料(共益費含む) | 保証金 | 入居可能日 | 検討リスト | 詳細 |
|---|---|---|---|---|---|---|
| 3 | 59.02坪 | 応相談(応相談) | 応相談 | 2026年3月上旬 | ||
| 6 | 300.00坪 | 応相談(応相談) | 応相談 | 2026年4月上旬 |
…新着物件
アクセス
JMFビル東陽町02の物件情報
JMFビル東陽町02(江東区新砂)は東陽町駅(3番出口)から徒歩10分の賃貸オフィスです。ビル正面のガラス張りが美しく、正面出入り口は光沢ある石調タイルが高級感を演出します。1989年竣工、地上7階の鉄筋コンクリート造で、永代通りから少し奥まった工業専用地域の閑静なエリアにあるため、お仕事に集中できる環境です。近隣にはコンビニ、飲食店、銀行が点在しており利便性の高いエリアです。主な設備はOAフロア、セントラル空調、男女別トイレ、エレベーターは3基、機械警備と有人管理が併用されています。基準階は約589坪で、貸室内はほぼ長方形で自由なレイアウトが可能です。JMFビル東陽町02は東陽町駅(3番出口)の他に南砂町駅(1番出口)徒歩11分で利用も可能です。

