3階は現在募集がありません
2フロア募集区画あり

JMFビル東陽町02 3階

前の写真 次の写真

物件概要

物件番号

88-00002-173

物件名

JMFビル東陽町02

所在地

面積

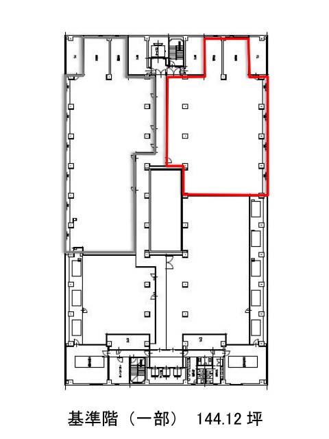
144.12坪

賃料(共益費含)


入居日

募集終了

保証金

礼金

更新料

償却費

竣工

1989年11月

構造

SRC

規模

地上7階

トイレ

男女別

空調

セントラル

エレベーター

セキュリティ

駐車場

耐震

新耐震基準

基準階天井高

2550mm

空室延床面積

359.02坪

最寄駅

情報更新日

2025/11/20

JMFビル東陽町02のテナント募集中区画

階数 面積 賃料(共益費含む) 保証金 入居可能日 検討リスト 詳細
3 59.02坪 応相談(応相談) 応相談 2026年3月上旬
6 300.00坪 応相談(応相談) 応相談 2026年4月上旬
…新着物件

アクセス

JMFビル東陽町02の物件情報

JMFビル東陽町02(江東区新砂)は東陽町駅(3番出口)から徒歩10分の賃貸オフィスです。
ビル正面のガラス張りが美しく、正面出入り口は光沢ある石調タイルが高級感を演出します。1989年竣工、地上7階の鉄筋コンクリート造で、永代通りから少し奥まった工業専用地域の閑静なエリアにあるため、お仕事に集中できる環境です。近隣にはコンビニ、飲食店、銀行が点在しており利便性の高いエリアです。主な設備はOAフロア、セントラル空調、男女別トイレ、エレベーターは3基、機械警備と有人管理が併用されています。基準階は約589坪で、貸室内はほぼ長方形で自由なレイアウトが可能です。
JMFビル東陽町02は東陽町駅(3番出口)の他に南砂町駅(1番出口)徒歩11分で利用も可能です。

近隣のエリア・駅から探す