7階は現在募集がありません
オリックス目黒ビル 7階
物件概要
オリックス目黒ビルのテナント募集中区画
現在、空室がございません。
アクセス
オリックス目黒ビルの物件情報
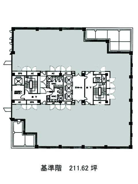
オリックス目黒ビル(目黒区目黒)は目黒駅(出口3)から徒歩7分の賃貸オフィスです。1996年竣工、地上10階建て。目黒川沿い、目黒通りから少し入った所に立地し、ガラス張りの視認性が高い外観です。吹き抜けのエントランスは高級感のある石彫で、テーブルと椅子がセットされていますので来訪時の待合いに活用出来そうです。エレベーターは3基設置されていますので待ち時間が少なく済みます。貸し室は区画によって一部凹凸がありますが、無柱の整形空間が確保される間取りですのでレイアウトがしやすいでしょう。設備面は個別空調、OAフロア、男女別トイレ、駐車場を備え、天井高は2,700mmと高めの設計で快適なオフィス環境をサポートしてくれます。オリックス目黒ビルは目黒駅(出口3)の他に不動前駅(出口)徒歩15分で利用も可能です。

