1階は現在募集がありません
1フロア募集区画あり

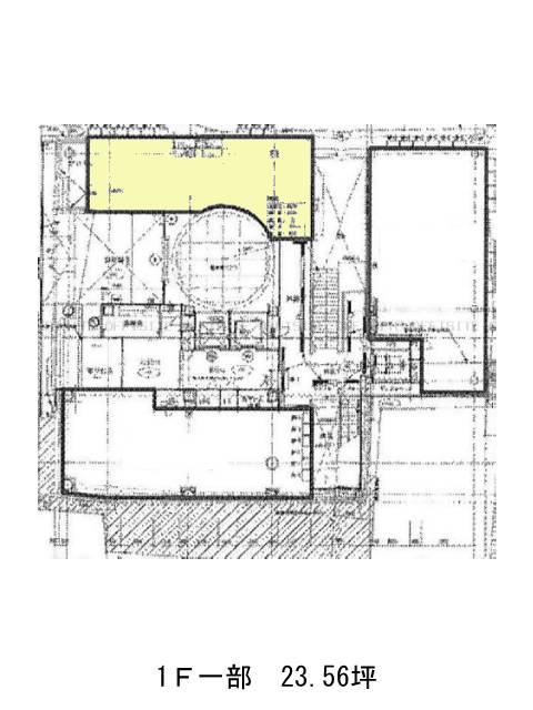
Daiwa目黒スクエア 1階

前の写真 次の写真

物件概要

物件番号

891-00057-30

物件名

Daiwa目黒スクエア

所在地

面積

23.56坪

賃料(共益費含)


入居日

募集終了

保証金

礼金

更新料

償却費

竣工

2009年7月

構造

規模

地上14階/地下2階

トイレ

男女別

空調

個別空調

エレベーター

セキュリティ

駐車場

耐震

新耐震基準

基準階天井高

2700mm

空室延床面積

73.61坪

最寄駅

情報更新日

2026/04/02

Daiwa目黒スクエアのテナント募集中区画

階数 面積 賃料(共益費含む) 保証金 入居可能日 検討リスト 詳細
9 73.61坪 応相談(応相談) 応相談 2026年8月下旬
…新着物件

Daiwa目黒スクエアのアクセス

Daiwa目黒スクエアの物件情報

Daiwa目黒スクエア(目黒区目黒)は目黒駅(西口)から徒歩6分の賃貸オフィスです。
Daiwa目黒スクエアは目黒駅(西口)の他に不動前駅(出口)徒歩15分で利用も可能です。

近隣のエリア・駅から探す