10階 1036は現在募集がありません
3フロア募集区画あり
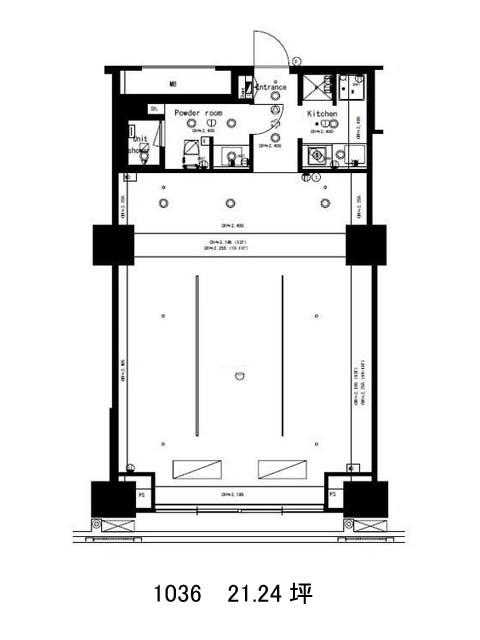
the SOHO 10階 1036
物件概要
物件番号
94-00006-160物件名
the SOHO所在地
- 東京都江東区青海2-7-4
- アクセスマップ
面積
21.24坪賃料(共益費含)
−入居日
募集終了保証金
−礼金
−更新料
−償却費
−竣工
2010年1月構造
RC規模
地上13階/地下1階トイレ
不明空調
個別空調エレベーター
有セキュリティ
有駐車場
有耐震
新耐震基準基準階天井高
空室延床面積
154.41坪最寄駅
- 東京国際クルーズターミナル駅
- 徒歩7分
- テレコムセンター駅
- 徒歩8分
- 台場駅
- 徒歩15分
- 青海駅
- 徒歩16分
情報更新日
2026/01/20the SOHOのテナント募集中区画
| 階数 | 面積 | 賃料(共益費含む) | 保証金 | 入居可能日 | 検討リスト | 詳細 |
|---|---|---|---|---|---|---|
| 3 | 98.05坪 | 2,194,500円/月(22,382円/坪) | 応相談 | 即 | ||
| 4 | 34.59坪 | 619,300円/月(17,904円/坪) | 応相談 | 即 | ||
| 9 | 21.77坪 | 436,700円/月(20,060円/坪) | 66万円 | 即 |
…新着物件
the SOHOのアクセス
the SOHOの物件情報
the SOHO(江東区青海)は東京国際クルーズターミナル駅(東口)から徒歩7分の賃貸オフィスです。巨大な立方体のような特徴的な形状と白とダークグレーの外壁がビルの視認性を高めています。ビル内の施設が大変充実しており、コンビニ、銀行ATMのほか、カフェ、ジム、バーなどのリフレッシュできる施設もあります。屋上テラスからの眺望は一見の価値ありです。2010年竣工、地上13階・地下1階の鉄筋コンクリート造で、主な設備としてはOAフロア、個別空調、男女別トイレ、エレベーター5基設置で、有人・機械警備併用のため安心してお過ごしできます。貸しオフィスは10~40坪前後のスペースとなります。the SOHOは東京国際クルーズターミナル駅(東口)の他にテレコムセンター駅(南口)徒歩8分、台場駅(南口)徒歩15分で利用も可能です。

