賃貸オフィス東京.com

スタッフブログ

東京の賃貸オフィス・
賃貸事務所をお探しの方へ

徹底サポートのスタッフブログ

「プライム千駄ヶ谷ビル」室内天井高2800mm!!環境にも配慮された充実設備のビル

プライム千駄ヶ谷ビルのメイン画像

白×ブルー系の市松模様が印象的。
間口も広く、堂々とした佇まいです!!

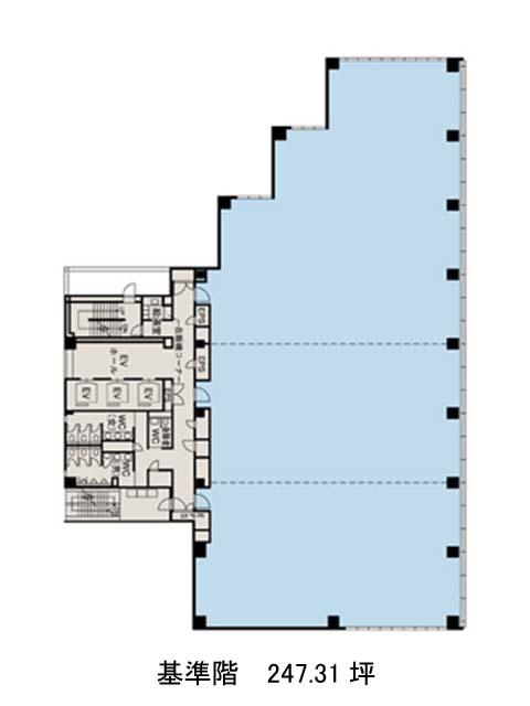
間取り図を見る

FLOOR MAP

柱は外周にまとめられているため、室内を最大限活用できます。
OAフロアにより配線もすっきり!中規模~の分割区画実績もあります。

その他の画像を見る

OTHER PHOTO
プライム千駄ヶ谷ビルのエントランス エントランス
プライム千駄ヶ谷ビルのホール ホール
プライム千駄ヶ谷ビルのホール ホール
プライム千駄ヶ谷ビルのエレベーター エレベーター

建物の基本情報

INFORMATION

名称プライム千駄ヶ谷ビル

住所東京都渋谷区千駄ヶ谷4-23-5

竣工2009年5月

規模地上8階

構造S造

交通東京メトロ副都心線「北参道駅」徒歩5分

設備等エレベーター3基・OAフロア・個別空調
男女別トイレ・機械警備・駐車場

終わりに

END

青と白のガラスが織りなす市松模様の外観が目を引く、洗練された印象のオフィスビル。
エレベーターホールには自然光が差し込み、石調仕上げの壁面とともに落ち着いた雰囲気を演出しています。
基準階はゆとりある約247坪で、無柱に近い構造が特徴。効率的なレイアウトが可能で、分割利用にも柔軟に対応します。水回りは室外に設けられており、執務スペースの快適性も◎。
エレベーター3基に加え、環境にも配慮された省エネ設計がなされている点も見逃せません。ビルの存在感と機能性、どちらも兼ね備えたハイスペックオフィスです。

その他のおすすめ物件を見る

OTHER

日本橋本町東急ビルは、三越前駅徒歩3分、江戸桜通り沿いの角地に立地するオフィスビルです。
2004年築ながら、リニューアルや丁寧な管理により、現在でも高い美観を維持。
ガラス面とフレームを基調とした外観は、周辺の街並みに調和しつつ、品格ある存在感を放ちます。
隣接するコレド室町2・コレド室町をはじめ、商業・金融機能が集積した日本橋らしい利便性の高い環境が整っています。

2026.04.13 中央区

新宿通りと貝坂通りが交わる角地に佇む本物件。
オフィスとしての使いやすさは保ちながら、建物内外共にデザイン性が高く、この物件にしかない味わいがあります。

2025.12.01 千代田区

”京橋彩区”を構成するビルの一つとして誕生した本物件。
アートが融合する次世代ビルで次のステージへ誘います✨️

2025.11.11 中央区