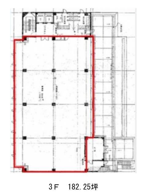
三井ウッディビル 3階
物件概要
三井ウッディビルのテナント募集中区画
| 階数 | 面積 | 賃料(共益費含む) | 保証金 | 入居可能日 | 検討リスト | 詳細 |
|---|---|---|---|---|---|---|
| 3 | 182.25坪 | 応相談(応相談) | 応相談 | 即 | ||
| 5 | 180.11坪 | 応相談(応相談) | 応相談 | 即 |
…新着物件
アクセス
三井ウッディビルの物件情報
三井ウッディビル(江東区東陽)は東陽町駅(3番出口)から徒歩4分の賃貸オフィスです。ビル正面がガラス張りで清潔感と存在感を放った外観です。1990年竣工、地上6階・地下1階建ての鉄筋コンクリート造で、永代通りから少し入った交通量の少ないエリアにあるため、静かな環境でお仕事が可能です。近隣にはコンビニ、郵便局、飲食店が多くあり、お食事と懇親会の場で困ることはありません。基準階は約252坪で、OAフロア、個別空調、男女別トイレ、エレベーターは2基と充実の設備です。有人・機械警備併用でセキュリティ面は万全です。貸室内は柱はあるものの、正方形に近い形で区画別にレイアウトを考えやすい。三井ウッディビルは東陽町駅(3番出口)の他に南砂町駅(1番出口)徒歩14分で利用も可能です。

