1階は現在募集がありません
1フロア募集区画あり

CN-1BLDG 1階

前の写真 次の写真

物件概要

物件番号

115-00037-10

物件名

CN-1BLDG

所在地

面積

110.18坪

賃料(共益費含)


入居日

募集終了

保証金

礼金

更新料

償却費

竣工

1991年3月

構造

S造

規模

地上9階/地下1階

トイレ

男女別

空調

個別空調

エレベーター

セキュリティ

駐車場

耐震

新耐震基準

基準階天井高

2600mm

空室延床面積

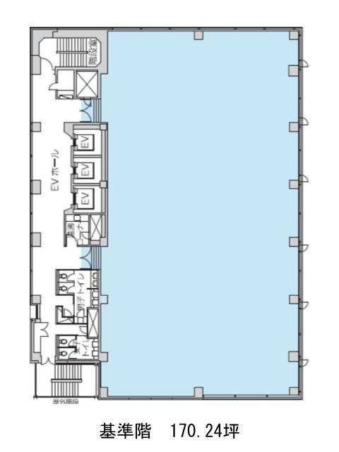
170.24坪

最寄駅

情報更新日

2026/04/07

CN-1BLDGのテナント募集中区画

階数 面積 賃料(共益費含む) 保証金 入居可能日 検討リスト 詳細
9 170.24坪 応相談(応相談) 応相談
…新着物件

CN-1BLDGのアクセス

CN-1BLDGの物件情報

CN-1BLDG(江東区木場)は木場駅(出口)から徒歩3分の賃貸オフィスです。
地上9階地下1階建てS造、1991年竣工のビルです。グレーの外壁ですっきりとした外観をしています。角地に建ち、視認性が高いでしょう。ビルの1階にドラッグストアが入居し、ご案内時の目印となります。設備仕様として、EV3基・駐車場19台・非常階段2箇所・空調・OAフロア・男女別トイレがあります。基準階面積は約170坪あり、大型のオフィスをお探しの企業によいでしょう。フロアは長方形の無柱空間でレイアウトのしやすい形状です。
CN-1BLDGは木場駅(出口)の他に門前仲町駅(1番出口)徒歩12分、東陽町駅(1番出口)徒歩13分で利用も可能です。

近隣のエリア・駅から探す