CN-1BLDG 9階
物件概要
CN-1BLDGのテナント募集中区画
| 階数 | 面積 | 賃料(共益費含む) | 保証金 | 入居可能日 | 検討リスト | 詳細 |
|---|---|---|---|---|---|---|
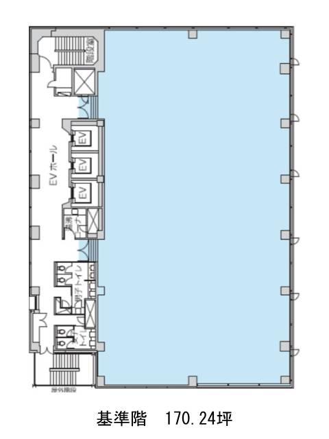
| 9 | 170.24坪 | 応相談(応相談) | 応相談 | 即 |
…新着物件
CN-1BLDGのアクセス
CN-1BLDGの物件情報
CN-1BLDG(江東区木場)は木場駅(出口)から徒歩3分の賃貸オフィスです。地上9階地下1階建てS造、1991年竣工のビルです。グレーの外壁ですっきりとした外観をしています。角地に建ち、視認性が高いでしょう。ビルの1階にドラッグストアが入居し、ご案内時の目印となります。設備仕様として、EV3基・駐車場19台・非常階段2箇所・空調・OAフロア・男女別トイレがあります。基準階面積は約170坪あり、大型のオフィスをお探しの企業によいでしょう。フロアは長方形の無柱空間でレイアウトのしやすい形状です。CN-1BLDGは木場駅(出口)の他に門前仲町駅(1番出口)徒歩12分、東陽町駅(1番出口)徒歩13分で利用も可能です。

