愛宕東洋ビルのテナント募集中区画
| 階数 | 面積 | 賃料(共益費含む) | 保証金 | 入居可能日 | 検討リスト | 詳細 |
|---|---|---|---|---|---|---|
| 3 | 71.86坪 | 応相談(応相談) | 応相談 | 2026年4月下旬 |
…新着物件
アクセス
愛宕東洋ビルの物件情報
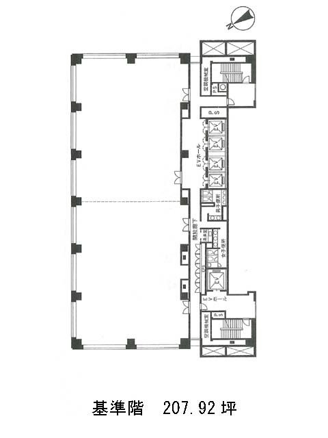
愛宕東洋ビル(港区愛宕)は虎ノ門ヒルズ駅(A1番出口)から徒歩3分の賃貸オフィスです。地上16階建ての物件ということもあり、上層階からの眺望はとても良好です。交差点の角地に立地しているため、日当たりがよく通風良好です。外観は全体的にグレーを基調とした色合いで、とてもシンプルなデザインとなっております。ビル内にはOAフロアが備えられており、男女トイレは別となっております。周辺にはコンビニや飲食店、郵便局などが複数あるためとても利便性が高いです。またビルの1階にもコンビニが入っているため、休憩時などに活用しやすいでしょう。愛宕東洋ビルは虎ノ門ヒルズ駅(A1番出口)の他に虎ノ門駅(B6番出口)徒歩7分、神谷町駅(3番出口)徒歩9分で利用も可能です。

