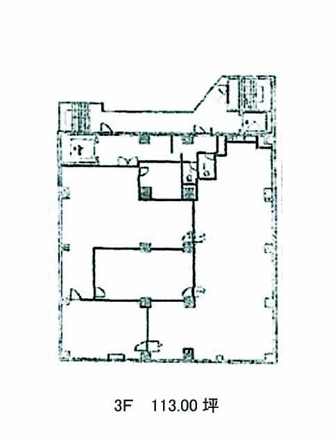
大東芝浦ビル 3階
物件概要
大東芝浦ビルのテナント募集中区画
…新着物件
大東芝浦ビルのアクセス
大東芝浦ビルの物件情報
大東芝浦ビル(港区海岸)は芝浦ふ頭駅(西口)から徒歩12分の賃貸オフィスです。首都高速と海岸通り沿いに立地しています。外観は全体的にグレーを基調とししており、外階段の赤い手すりが鮮やかで、レトロチックな印象があります。ビル内にはOAフロアが備えられている場所もあり、個別空調も完備されていて、トイレも男女別となっているため設備面は充実しております。エレベーターは2基設置されており、セキュリティは機械警備を導入しているため、安心です。周辺には飲食店などが複数あるため、ランチが楽しめるでしょう。また、ビルのすぐ隣にもコンビニがあるため、急な買い出しにも対応できそうです。

