4階は現在募集がありません
2フロア募集区画あり

ラ・ベリテAKASAKA 4階

前の写真 次の写真

物件概要

物件番号

120-00008-20

物件名

ラ・ベリテAKASAKA

所在地

面積

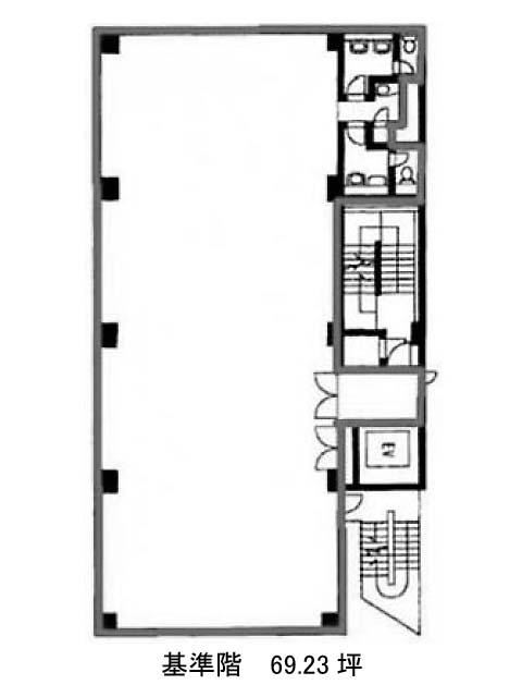
69.23坪

賃料(共益費含)


入居日

募集終了

保証金

礼金

更新料

償却費

竣工

1987年3月

構造

SRC

規模

地上8階

トイレ

男女別

空調

個別空調

エレベーター

セキュリティ

駐車場

耐震

新耐震基準

基準階天井高

2430mm

空室延床面積

128.27坪

最寄駅

情報更新日

2026/03/04

ラ・ベリテAKASAKAのテナント募集中区画

階数 面積 賃料(共益費含む) 保証金 入居可能日 検討リスト 詳細
6 69.23坪 応相談(応相談) 応相談
8 59.04坪 応相談(応相談) 応相談 2026年4月
…新着物件

ラ・ベリテAKASAKAのアクセス

ラ・ベリテAKASAKAの物件情報

ラ・ベリテAKASAKA(港区元赤坂)は赤坂見附駅(出口4)から徒歩3分の賃貸オフィスです。
1987年竣工の地上8階建ビルです。白いすっきりとした外観に、特徴的な流線形のゲートが目印となるでしょう。エントランス前に樹木がありベンチが置かれリフレッシュスペースとして利用できるでしょう。新耐震基準に適合しています。間取りは長方形で柱が中央に無く、すっきりとした形をしています。床はOAフロアで、配線のレイアウトがしやすいでしょう。EV1基・非常階段2箇所・駐車場・個別空調・男女別といった設備仕様です。
ラ・ベリテAKASAKAは赤坂見附駅(出口4)の他に永田町駅(7番出口)徒歩5分、赤坂駅(1番出口)徒歩11分で利用も可能です。

近隣のエリア・駅から探す