ラ・ベリテAKASAKA 6階
物件概要
物件番号
120-00008-40物件名
ラ・ベリテAKASAKA所在地
- 東京都港区元赤坂1-5-7
- アクセスマップ
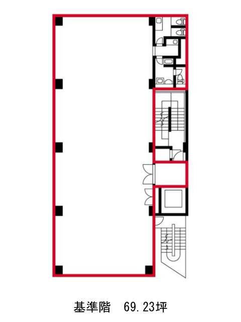
面積
69.23坪賃料(共益費含)
:応相談応相談
入居日
2026年1月上旬保証金
応相談礼金
なし更新料
なし償却費
なし竣工
1987年3月構造
SRC規模
地上8階トイレ
男女別空調
個別空調エレベーター
有セキュリティ
有駐車場
有耐震
新耐震基準基準階天井高
2450mm空室延床面積
128.27坪情報更新日
2025/12/12ラ・ベリテAKASAKAのテナント募集中区画
| 階数 | 面積 | 賃料(共益費含む) | 保証金 | 入居可能日 | 検討リスト | 詳細 |
|---|---|---|---|---|---|---|
| 6 | 69.23坪 | 応相談(応相談) | 応相談 | 2026年1月上旬 | ||
| 8 | 59.04坪 | 応相談(応相談) | 応相談 | 2026年2月中旬 |
…新着物件
アクセス
ラ・ベリテAKASAKAの物件情報
ラ・ベリテAKASAKA(港区元赤坂)は赤坂見附駅(出口4)から徒歩3分の賃貸オフィスです。1987年竣工の地上8階建ビルです。白いすっきりとした外観に、特徴的な流線形のゲートが目印となるでしょう。エントランス前に樹木がありベンチが置かれリフレッシュスペースとして利用できるでしょう。新耐震基準に適合しています。間取りは長方形で柱が中央に無く、すっきりとした形をしています。床はOAフロアで、配線のレイアウトがしやすいでしょう。EV1基・非常階段2箇所・駐車場・個別空調・男女別といった設備仕様です。ラ・ベリテAKASAKAは赤坂見附駅(出口4)の他に永田町駅(7番出口)徒歩5分、赤坂駅(1番出口)徒歩11分で利用も可能です。

