4階は現在募集がありません
1フロア募集区画あり

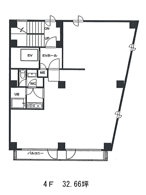
麻布ネストビル 4階

前の写真 次の写真

物件概要

物件番号

121-00013-30

物件名

麻布ネストビル

所在地

面積

32.66坪

賃料(共益費含)


入居日

募集終了

保証金

礼金

更新料

償却費

竣工

1989年6月

構造

RC

規模

地上5階/地下1階

トイレ

男女共用

空調

個別空調

エレベーター

セキュリティ

駐車場

耐震

新耐震基準

基準階天井高

2400mm

空室延床面積

24.99坪

最寄駅

情報更新日

2026/01/06

麻布ネストビルのテナント募集中区画

階数 面積 賃料(共益費含む) 保証金 入居可能日 検討リスト 詳細
2 24.99坪 439,824円/月(17,600円/坪) 239万円
…新着物件

アクセス

麻布ネストビルの物件情報

麻布ネストビル(港区元麻布)は麻布十番駅(7番出口)から徒歩6分の賃貸オフィスです。
麻布ネストビルは麻布十番駅(7番出口)の他に六本木駅(出口)徒歩9分で利用も可能です。

近隣のエリア・駅から探す