3階 3Bは現在募集がありません
8フロア募集区画あり
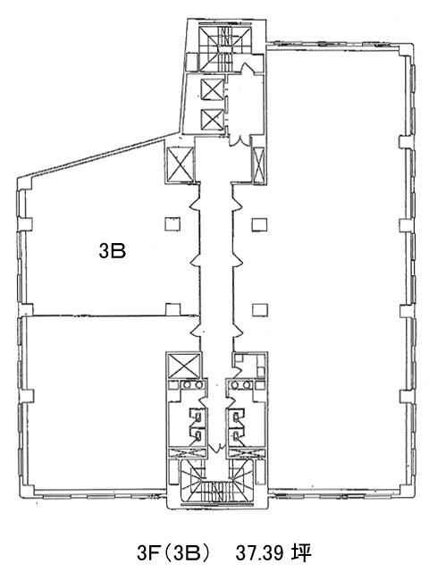
第2秋山ビルディング 3階 3B
物件概要
物件番号
122-00191-150物件名
第2秋山ビルディング所在地
- 東京都港区虎ノ門3-6-2
- アクセスマップ
面積
37.39坪賃料(共益費含)
−入居日
募集終了保証金
−礼金
−更新料
−償却費
−竣工
1975年2月構造
SRC規模
地上9階/地下2階トイレ
男女別空調
個別空調エレベーター
有セキュリティ
有駐車場
有耐震
旧耐震基準基準階天井高
2450mm空室延床面積
438.31坪情報更新日
2026/03/05第2秋山ビルディングのテナント募集中区画
…新着物件
第2秋山ビルディングのアクセス
第2秋山ビルディングの物件情報
第2秋山ビルディング(港区虎ノ門)は虎ノ門ヒルズ駅(A2番出口)から徒歩3分の賃貸オフィスです。シンプルな白一色の外観。地上9階建てです。エントランス前には植栽が施されており、白い外観にマッチしています。
エントランスまでの敷地は石畳で風格があります。エントランス~エレベーターホールはベージュトーンを基調とした清潔感溢れる空間。
1フロアは最大約170坪ですが、フロアや募集時期によって最小20坪程度から様々なサイズの分割区画がございます。主な設備は個別空調・男女別トイレ・機械警備・エレベーター2基・駐車場です。
駅からは若干の距離がありますが、その分周辺は静かですので落ち着いたオフィスライフを送ることが出来ます。第2秋山ビルディングは虎ノ門ヒルズ駅(A2番出口)の他に神谷町駅(4B番出口)徒歩7分、虎ノ門駅(2a番出口)徒歩8分で利用も可能です。

