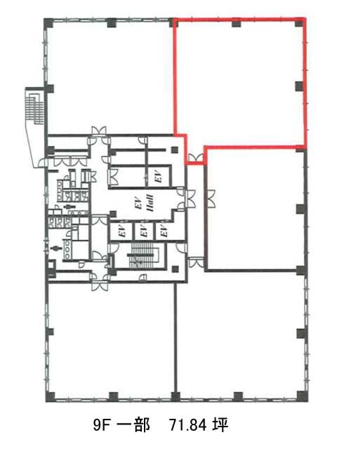
9階は現在募集がありません
神谷町プライムプレイス 9階
物件概要
神谷町プライムプレイスのテナント募集中区画
現在、空室がございません。
アクセス
神谷町プライムプレイスの物件情報
神谷町プライムプレイス(港区虎ノ門)は神谷町駅(4B番出口)から徒歩4分の賃貸オフィスです。2001年竣工、地上12階・地下2階建、窓面が多い外観が特徴的なデザインのオフィスビルです。エレベーターホール、エントランスは明るく高級感があり、来訪者にも好印象でしょう。ビルの1階にはカフェがあるので、休憩や打ち合わせに便利です。主な設備面としては、OAフロア、男女別トイレ、光ファイバー、個別空調、駐車場を完備している為、車をお使いの企業様にも便利です。神谷町プライムプレイスは神谷町駅(4B番出口)の他に虎ノ門ヒルズ駅(A1番出口)徒歩8分、六本木一丁目駅(3番出口)徒歩8分で利用も可能です。

