8階は現在募集がありません
2フロア募集区画あり
虎ノ門タワーズオフィス 8階
物件概要
物件番号
122-00367-215物件名
虎ノ門タワーズオフィス所在地
- 東京都港区虎ノ門4-1-28
- アクセスマップ
面積
467.79坪賃料(共益費含)
−入居日
募集終了保証金
−礼金
−更新料
−償却費
−竣工
2006年8月構造
S造規模
地上23階/地下3階トイレ
男女別空調
セントラルエレベーター
有セキュリティ
駐車場
無耐震
新耐震基準基準階天井高
2800mm空室延床面積
955.50坪情報更新日
2026/03/05虎ノ門タワーズオフィスのテナント募集中区画
| 階数 | 面積 | 賃料(共益費含む) | 保証金 | 入居可能日 | 検討リスト | 詳細 |
|---|---|---|---|---|---|---|
| 18 | 477.75坪 | 応相談(応相談) | 応相談 | 即 | ||
| 19 | 477.75坪 | 応相談(応相談) | 応相談 | 2027年1月 |
…新着物件
虎ノ門タワーズオフィスのアクセス
虎ノ門タワーズオフィスの物件情報
虎ノ門タワーズオフィス(港区虎ノ門)は神谷町駅(4B番出口)から徒歩6分の賃貸オフィスです。2006年竣工・地上23階建て周辺は大使館やホテルオークラ、美術館などに囲まれており都心でありながら非常に落ち着いた環境です。外観は落ち着いた色合いのガラス張りでシックな印象。ひと目でグレードの高さを感じます。
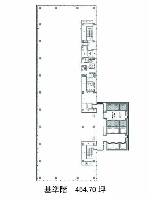
基準となるフロアは約450坪の大規模。フロアによっては分割区画がございます。室内は長方形に近いシンプルな間取りの無柱空間+OAフロアによりレイアウトの自由度はかなり高いでしょう。
駅から若干の距離感はありますが、ビル1階部分にセブンイレブンの店舗テナントが入居中ですのでちょっとした用事に便利でしょう。虎ノ門タワーズオフィスは神谷町駅(4B番出口)の他に虎ノ門ヒルズ駅(A2番出口)徒歩6分、溜池山王駅(13番出口)徒歩7分で利用も可能です。

