6階は現在募集がありません
虎ノ門トーセイビル 6階
物件概要
虎ノ門トーセイビルのテナント募集中区画
現在、空室がございません。
アクセス
虎ノ門トーセイビルの物件情報
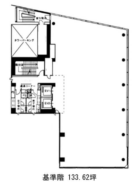
虎ノ門トーセイビル(港区虎ノ門)は神谷町駅(4A番出口)から徒歩3分の賃貸オフィスです。2006年竣工、鉄骨造の地上9階建てです。桜田通りに面しているため視認性も高いでしょう。全面ガラス張りの外観が美しくスタイリッシュな印象があります。エントランスホールは明るく、清潔感があります。また周辺にはコンビニや飲食店、郵便局があり利便性が高いです。ビル内にはOAフロアが備えられており、トイレは男女別となっております。駐車場もあるため、社用車を使う場合も便利です。虎ノ門トーセイビルは神谷町駅(4A番出口)の他に虎ノ門ヒルズ駅(A1番出口)徒歩5分、虎ノ門駅(2a番出口)徒歩9分で利用も可能です。

