第3虎ノ門電気ビルディング 6階
物件概要
物件番号
122-00383-60物件名
第3虎ノ門電気ビルディング所在地
- 東京都港区虎ノ門1-2-20
- アクセスマップ
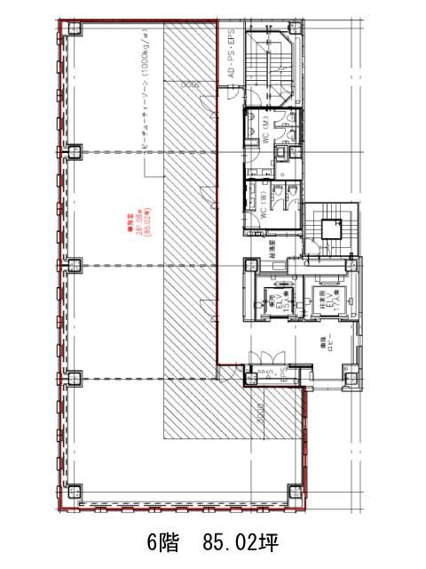
面積
85.02坪賃料(共益費含)
:応相談応相談
入居日
2026年6月上旬保証金
応相談礼金
なし更新料
なし償却費
なし竣工
2013年2月構造
SRC規模
地上12階/地下1階トイレ
男女別空調
個別空調エレベーター
有セキュリティ
有駐車場
有耐震
新耐震基準基準階天井高
2700mm空室延床面積
85.02坪情報更新日
2025/12/04第3虎ノ門電気ビルディングのテナント募集中区画
| 階数 | 面積 | 賃料(共益費含む) | 保証金 | 入居可能日 | 検討リスト | 詳細 |
|---|---|---|---|---|---|---|
| 6 | 85.02坪 | 応相談(応相談) | 応相談 | 2026年6月上旬 |
…新着物件
第3虎ノ門電気ビルディングのアクセス
第3虎ノ門電気ビルディングの物件情報
第3虎ノ門電気ビルディング(港区虎ノ門)は虎ノ門駅(3番出口)から徒歩3分の賃貸オフィスです。まず目に入るのはスタイリッシュな外観。デザイン性の高いエントランスを抜けるとガラス壁面の向こうに緑豊かな庭園が見えます。エントランス~エレベーターホールの内装は数種類の素材が組み合わされていても統一感があり、庭園のグリーンとも相性抜群。企業イメージアップにも繋がることでしょう。
基準となるフロアは約85坪の規模。執務室はL字型の無柱空間によりレイアウト効率良好、またOA床のためコード類もすっきり収納出来ます。外観や共有部分同様、洗練された内装です。男女別トイレと給湯スペースは室外に設置済み。セキュリティは機械警備を採用しています。第3虎ノ門電気ビルディングは虎ノ門駅(3番出口)の他に虎ノ門ヒルズ駅(B1番出口)徒歩5分、霞ケ関駅(A13番出口)徒歩6分で利用も可能です。

