虎ノ門30森ビル 8階
物件概要
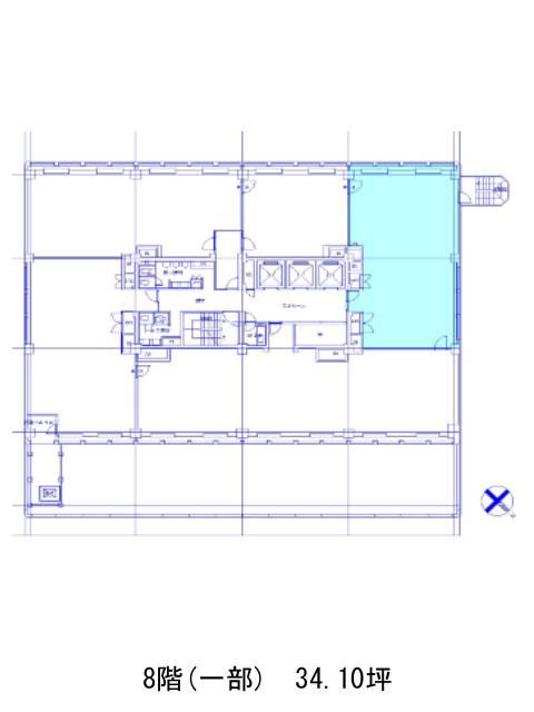
虎ノ門30森ビルのテナント募集中区画
| 階数 | 面積 | 賃料(共益費含む) | 保証金 | 入居可能日 | 検討リスト | 詳細 |
|---|---|---|---|---|---|---|
| 8 | 34.10坪 | 応相談(応相談) | 応相談 | 相談 |
…新着物件
アクセス
虎ノ門30森ビルの物件情報
虎ノ門30森ビル(港区虎ノ門)は虎ノ門ヒルズ駅(A2番出口)から徒歩2分の賃貸オフィスです。1975年竣工、鉄骨鉄筋コンクリート造の地上9階・地下2階建てです。2007年にリニューアルをしています。エントランスホールやエレベーターホールは広々としており、清潔感と開放感があります。また周辺にはコンビニや飲食店などが複数あるため、ランチも楽しめるでしょう。ビル内にはOAフロアが備えられており、トイレは男女別となっております。駐車場もあるため、社用車を使う場合も便利です。エレベーターが3基設置されているので、比較的ビル内の移動には困らないでしょう。虎ノ門30森ビルは虎ノ門ヒルズ駅(A2番出口)の他に虎ノ門駅(2a番出口)徒歩6分、神谷町駅(4B番出口)徒歩7分で利用も可能です。

